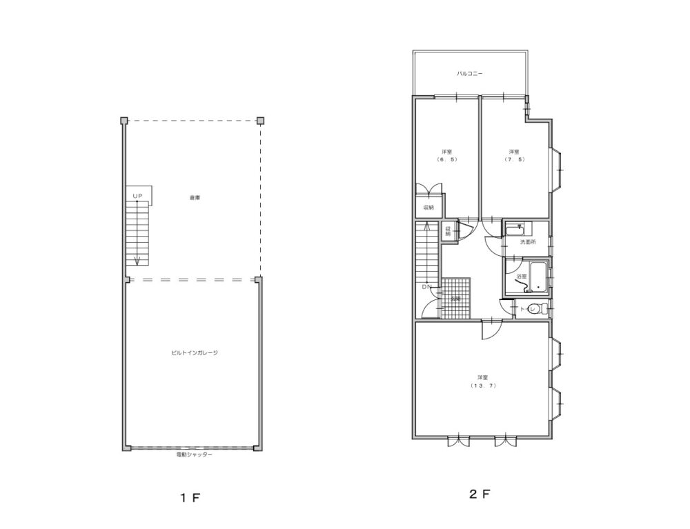
ワンちゃん、猫ちゃん1匹まで飼育可能です♪1階は電動シャッター付きのガレージとなっております♪リモコンで開閉可能です♪ガレージ内に200Ⅴの充電器があるのでEV車充電可♪



| 賃料 | -万円 | ||
|---|---|---|---|
| 敷金 | 2ヶ月 | ||
| 礼金 | 1ヶ月 | ||
| 間取り | 2LDK | ||
| 面積 | 139.86㎡ | ||
| 築年数 | 1985年11月 | ||
| 構造 | 木・鉄骨造 | ||
| 階数/階 | 2階建て | ||
| 駐車場 | 2台無料(車種による) | ||
| 所在地 | 岡山市東区中2丁目 | ||
| 学区 | 西大寺小学区 | ||
| 種目 | 賃貸一戸建て | ||
| 取引態様 | 専任媒介 | ||
岡山市東区西大寺中2丁目(西大寺駅)2LDK
ワンちゃん、猫ちゃん1匹まで飼育可能です♪1階は電動シャッター付きのガレージとなっております♪リモコンで開閉可能です♪ガレージ内に200Ⅴの充電器があるのでEV車充電可♪



| 賃料 | -万円 | ||
|---|---|---|---|
| 敷金 | 2ヶ月 | ||
| 礼金 | 1ヶ月 | ||
| 間取り | 2LDK | ||
| 面積 | 139.86㎡ | ||
| 築年数 | 1985年11月 | ||
| 構造 | 木・鉄骨造 | ||
| 階数/階 | 2階建て | ||
| 駐車場 | 2台無料(車種による) | ||
| 所在地 | 岡山市東区中2丁目 | ||
| 学区 | 西大寺小学区 | ||
| 種目 | 賃貸一戸建て | ||
| 取引態様 | 専任媒介 | ||