人気の芳泉学区にリノベーション物件登場♪タイル調のお洒落な外観♪室内はリビングは高級感のあるキッチン、深みのある色調のフローリングで仕上げました♪駐車場は4台程度駐車可能です!




| 価格 | 2,549万円 | ||
|---|---|---|---|
| 土地面積 | 176.57㎡(約53.41坪) | ||
| 私道負担 | – | ||
| 構造 | 木造 | ||
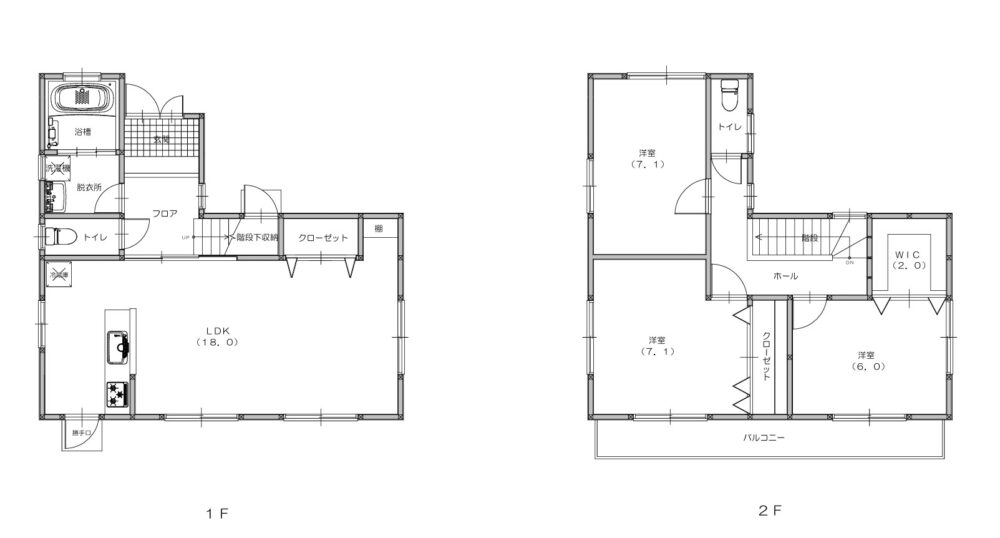
| 間取り | 3LDK+S | ||
| 面積 | 106.62㎡(約32.25坪) | ||
| 築年数 | 2005年10月 | ||
| 土地権利 | 所有権 | ||
| 地目 | 宅地 | ||
| 都市計画 | 市街化区域 | ||
| 用途地域 | 第一種中高層 | ||
| 建ぺい率 | 60% | ||
| 容積率 | 200% | ||
| 駐車場 | 有(4台) 無料 | ||
| 現況 | 空家 | ||
| 引渡し時期 | 即時 | ||
| 接道(角地・開口) | 東6.0m 私道 接面3.0m 位置指定あり | ||
| 所在地 | 岡山市南区福富西2丁目 | ||
| 学区 | 芳泉小学区 | ||
| 種目 | 売戸建住宅 | ||
| 取引態様 | 売主 | ||
岡山市南区福富西2丁目 3LDK+S 中古一戸建て